Pensacola, FL 32504
Property Inquiry
Contact Travis Talley about this property!
Property Details
This well-located end-unit townhome offers comfort and convenience in the heart of Pensacola, just off Creighton Road and Scenic Heights. Surrounded by mature trees, the home features a large, fully fenced backyard that feels like a private retreat. Inside, the main level welcomes you with a cozy living room centered around a fireplace, creating a warm and inviting space. The adjacent kitchen and dining area offer easy flow and direct access to the back patio, ideal for outdoor meals. A convenient half bathroom on the main floor adds functionality for guests. Upstairs, all three bedrooms are thoughtfully arranged - the spacious primary suite stands out with a covered balcony overlooking the backyard, along with an en-suite bathroom featuring double vanities, a large walk-in closet, and a shared tub/shower combo. Additional highlights include all impact glass windows (replaced 2023), a one-car garage with washer and dryer hookups, a fully fenced backyard complete with a privacy fence, storage shed, plenty of parking, and double gate access to the backyard. With its central location, private outdoor space, and functional layout, this townhome is an excellent opportunity for first-time homebuyers or investors seeking rental potential in Pensacola!
| COUNTY | Escambia |
| SUBDIVISION | DOGWOOD TERRACE |
| PARCEL ID | 09-1S-29-3005-001-013 |
| TYPE | Attached Single Unit |
| STYLE | Traditional |
| ACREAGE | 0 |
| LOT ACCESS | Controlled Access,County Road,Paved Road |
| LOT SIZE | 116.2x80x80.4 |
| HOA INCLUDE | N/A |
| HOA FEE | 75.00 (Annually) |
| UTILITIES | Electric,Public Sewer,Public Water |
| PROJECT FACILITIES | Pets Allowed,Short Term Rental - Allowed |
| ZONING | Resid Single Family |
| PARKING FEATURES | Garage,Garage Attached |
| APPLIANCES | Dishwasher,Disposal,Dryer,Smooth Stovetop Rnge,Stove/Oven Electric,Washer |
| ENERGY | AC - Central Elect,Ceiling Fans,Heat Cntrl Electric,Water Heater - Elect |
| INTERIOR | Breakfast Bar,Fireplace,Floor Tile,Floor Vinyl,Floor WW Carpet,Furnished - None,Pantry,Window Treatment All |
| EXTERIOR | Balcony,Fenced Back Yard,Fenced Privacy,Patio Open,Yard Building |
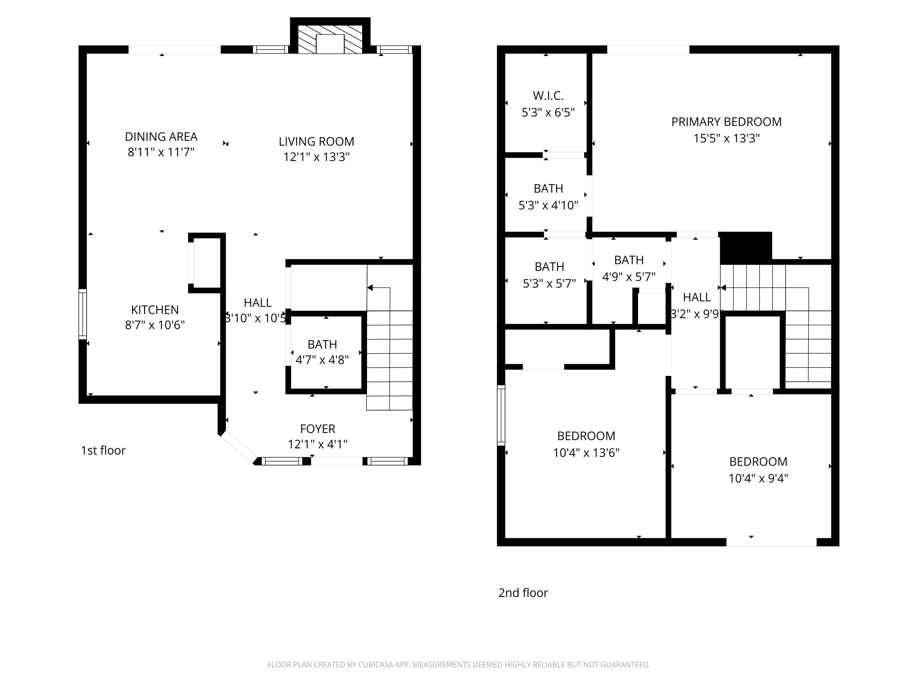
| ROOM DIMENSIONS | Foyer : 12.1 x 4.1 Half Bathroom : 4.7 x 4.8 Living Room : 12.1 x 13.3 Dining Area : 8.11 x 11.7 Kitchen : 8.7 x 10.6 Master Bathroom : 5.3 x 4.1 Full Bathroom : 5.3 x 5.7 Half Bathroom : 4.9 x 5.7 Bedroom : 10.4 x 13.6 Bedroom : 10.4 x 9.4 Master Bedroom : 15.5 x 13.3 |
Schools
Location & Map
East on Creighton Road from Ninth Avenue; left on Dogwood Terrace; property straight ahead on corner
















