Niceville, FL 32578
Property Inquiry
Contact Lisa Deering about this property!
Property Details
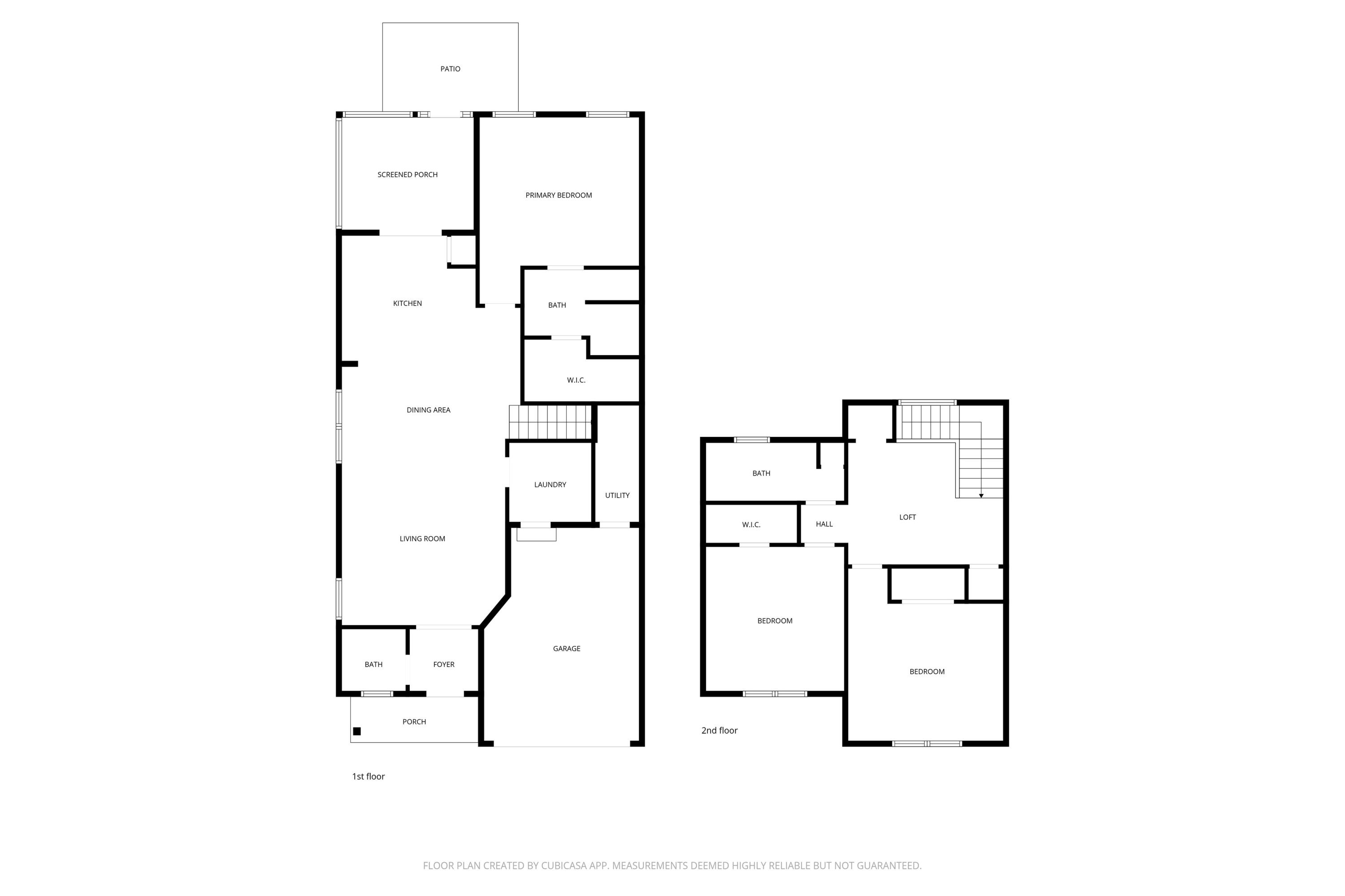
Welcome to Skipjack Cove at Marina Landing, where comfort, convenience, and coastal living come together in the heart of Bluewater Bay. This beautifully maintained townhome stands out with its highly sought-after first-floor primary suite, offering added ease and flexibility for everyday living. The home features high ceilings and tall interior doors that create an open, spacious feel throughout the main living areas.Step inside to an inviting open-concept layout with crown molding, ceramic tile flooring, and a kitchen designed for both style and function. The kitchen offers granite countertops, stainless steel appliances, and a breakfast bar, and it flows seamlessly into the living area and out to the large screened-in porch, an ideal spot for relaxing or entertaining. The first MORE floor also includes a convenient laundry room and a half bath for guests.
The first-floor primary suite includes a comfortable bedroom layout along with a well-appointed bathroom featuring a double vanity and a spacious walk-in closet.
Upstairs, you will find two generously sized additional bedrooms with ample closet spaces and a full bathroom with ceramic tile flooring. This level also includes a small landing area that can serve as a cozy workspace, reading nook, or added storage area. An attached garage provides both parking and extra storage options. Tile flooring is featured in the main living areas, with carpet and ceiling fans in the bedrooms for comfort.
For ease of ownership, all landscaping and sprinkler systems are maintained by the HOA.
This townhome is just a short stroll from the marina, Schooners Restaurant, and beautiful bay views, offering easy access to outdoor activities and waterfront enjoyment. The location is also convenient to the Mid-Bay Bridge, nearby shopping and restaurants, and Eglin Air Force Base.
Schedule your tour today to experience all that this exceptional Skipjack Cove property has to offer.
| COUNTY | Okaloosa |
| SUBDIVISION | MARINA LANDING |
| PARCEL ID | 15-1S-22-1501-0000-0060 |
| TYPE | Detached Single Family |
| STYLE | Contemporary |
| ACREAGE | 0 |
| LOT ACCESS | Paved Road |
| LOT SIZE | 28x62 |
| HOA INCLUDE | Ground Keeping |
| HOA FEE | 125.00 (Monthly) |
| UTILITIES | Electric,Public Sewer,Public Water,Underground |
| PROJECT FACILITIES | N/A |
| ZONING | County,Resid Single Family |
| PARKING FEATURES | Garage |
| APPLIANCES | Auto Garage Door Opn,Dishwasher,Microwave,Oven Self Cleaning,Stove/Oven Electric |
| ENERGY | AC - Central Elect,Double Pane Windows,Heat Cntrl Electric,Water Heater - Elect |
| INTERIOR | Breakfast Bar,Ceiling Crwn Molding,Floor Tile,Floor WW Carpet,Lighting Recessed,Pantry,Washer/Dryer Hookup,Window Treatmnt None |
| EXTERIOR | Columns,Porch Open,Porch Screened,Sprinkler System |
| ROOM DIMENSIONS | Living Room : 14 x 13 Dining Area : 11 x 10 Kitchen : 12 x 12 Master Bedroom : 15 x 13 Bedroom : 14 x 13 Bedroom : 12 x 13 Loft : 13 x 9 Screened Porch : 14 x 9 |
Schools
Location & Map
Hwy 20 To Bluewater Bay; south on Bay Dr; last right before the Marina take a right onto Ward Cove Dr. Then Right on Skipjack, home is on the right.




































































