Freeport, FL 32439
Property Inquiry
Contact Pamela Hawkins about this property!
Property Details
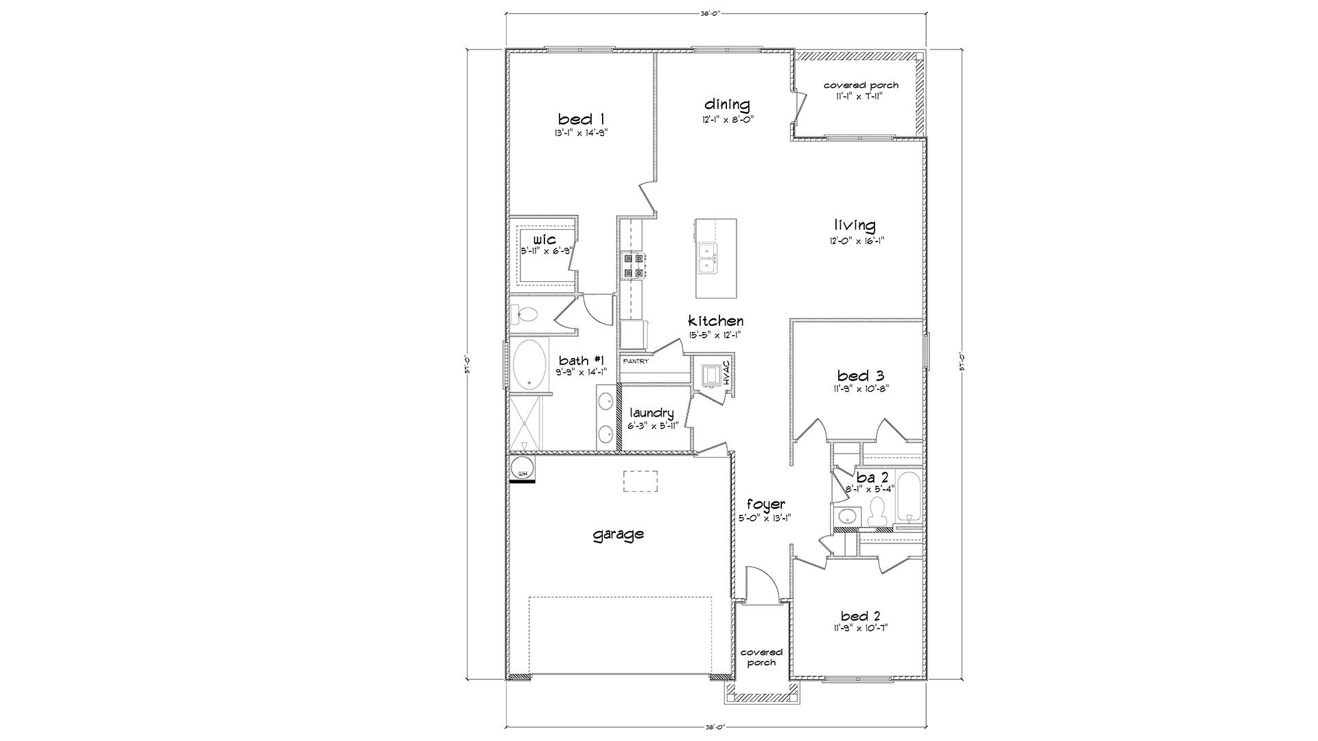
Welcome to 117 Dockside Road, a new home under construction at Magnolia at The Bluffs Phase 3 in Freeport Florida. Inside you will find a bright foyer leading to the open concept living area designed with a seamless connection between the kitchen, dining and living areas. The heart of this home includes the spacious kitchen that features a center island with granite countertops, walk-in pantry and upper and lower cabinetry providing ample storage space. EVP flooring is throughout the common areas of this home, and the kitchen has been equipped with an appliance package that includes a stove, microwave and dishwasher. The living and dining areas offer a comfortable space for family and guests. Enjoy your covered porch that is accessible from the dining area that has room for a dining table or outdoor seating area.
The primary bedroom, located at the back of the home, has a large and ensuite bath with a dual sink vanity, a separate shower and tub and a water closet for privacy. There are two additional bedrooms that have ample closet space and share a full bath. This home also features a nice laundry room with space for a full-size washer and dryer.
Each home in this community will include fully sodded lawns where cleared and flower beds at front entry. Homes come equipped with a Home is Connected® smart home technology package which allows you to control your home with your smart device while near or away. For more information on this floor plan, contact a D.R. Horton Sales Representative. Drawings, renderings, photos, square footages, floor plans and sizes are approximate and for illustration purposes only and will vary from the homes as built. Not all features available on all plans. Elevations and exterior materials may vary.
| COUNTY | Walton |
| SUBDIVISION | Magnolia at the Bluffs Ph 3 |
| PARCEL ID | 01-1S-19-23100-000-0370 |
| TYPE | Detached Single Family |
| STYLE | Craftsman Style |
| ACREAGE | 0 |
| LOT ACCESS | Paved Road |
| LOT SIZE | 48X119 |
| HOA INCLUDE | Management,Master Association |
| HOA FEE | 176.00 (Quarterly) |
| UTILITIES | Electric,Public Sewer,Public Water |
| PROJECT FACILITIES | N/A |
| ZONING | Resid Single Family |
| PARKING FEATURES | Garage |
| APPLIANCES | Auto Garage Door Opn,Dishwasher,Disposal,Microwave,Smoke Detector,Smooth Stovetop Rnge,Stove/Oven Electric,Warranty Provided |
| ENERGY | AC - Central Elect,Heat Cntrl Electric,Water Heater - Elect |
| INTERIOR | Floor WW Carpet New,Kitchen Island,Pantry,Washer/Dryer Hookup |
| EXTERIOR | Patio Covered |
| ROOM DIMENSIONS | Bedroom : 13.1 x 14.9 Bedroom : 11.9 x 10.7 Bedroom : 11.9 x 10.8 Living Room : 12 x 16.1 Dining Area : 12.1 x 8 Kitchen : 15.5 x 12.1 |
Schools
Location & Map
Traveling North on Highway 331 from Highway 20, continue to Acadia Way and turn right. Continue to Dockside Road and turn right. Follow to the home on the right




















