Freeport, FL 32439
Property Inquiry
Contact Pamela Hawkins about this property!
Property Details
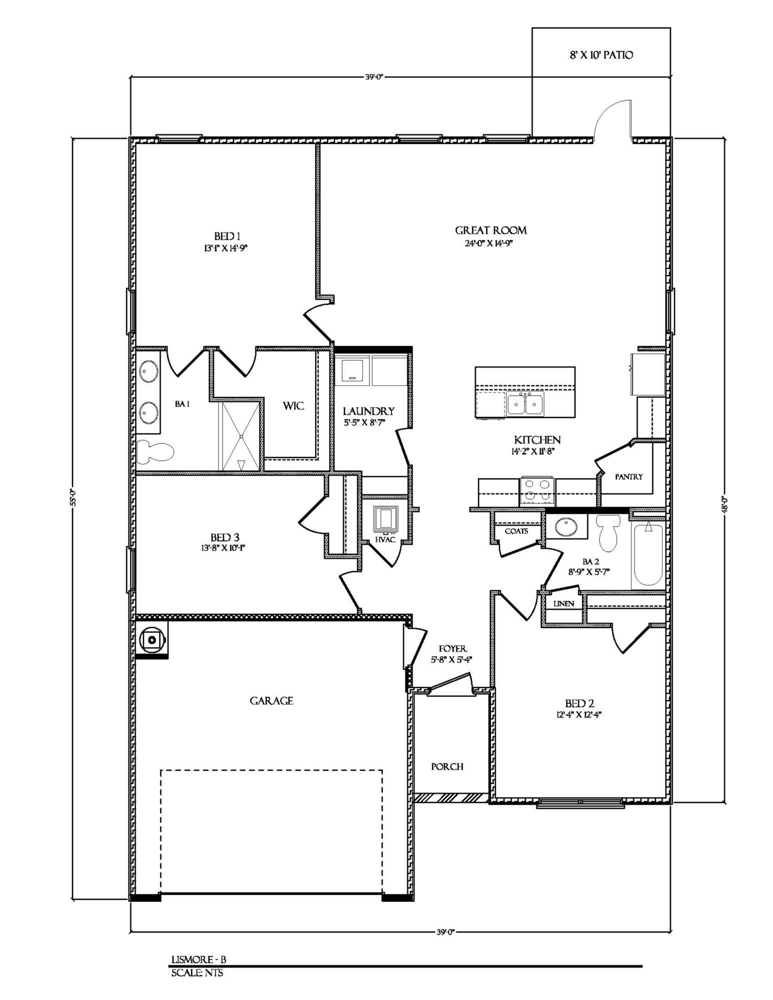
Welcome to 155 Eunola Lane, a new home in Phase III at Ashton Park in Freeport, Florida. This home is under construction. Entering this home, you will find EVP through the foyer which opens to a bright and airy space, with two secondary bedrooms and a full bathroom tucked off to one side. These rooms are perfectly sized with each offering plenty of closet space and easy access to the shared bath. This home features a seamless living space with EVP and carpet in the bedrooms. Continuing into the heart of the home, you will find an open concept living area. Here, the kitchen is open to the living area and features granite countertops, stainless steel appliances, and an island with a breakfast bar that creates the perfect spot for casual dining or entertaining. The adjoining dining area is well-positioned for family meals, while the living room offers a comfortable space to relax, complete with views of the backyard. The laundry room is off the kitchen and is complete with extra storage shelves. Privately located at the back of the home, the primary bedroom offers a peaceful retreat. The large bedroom is complemented by an ensuite bathroom, featuring a dual vanity, a large shower, and an expansive closet designed for all your wardrobe needs.
The patio at the back of the home provides the perfect place to enjoy outdoor living.
| COUNTY | Walton |
| SUBDIVISION | Ashton Park Phase III |
| PARCEL ID | 03-1S-19-23202-000-0347 |
| TYPE | Detached Single Family |
| STYLE | Craftsman Style |
| ACREAGE | 0 |
| LOT ACCESS | Paved Road |
| LOT SIZE | 50X160 |
| HOA INCLUDE | Management,Master Association |
| HOA FEE | 189.00 (Quarterly) |
| UTILITIES | Electric,Public Sewer,Public Water |
| PROJECT FACILITIES | N/A |
| ZONING | Resid Single Family |
| PARKING FEATURES | Garage,Garage Attached |
| APPLIANCES | Auto Garage Door Opn,Dishwasher,Disposal,Microwave,Smoke Detector,Smooth Stovetop Rnge,Stove/Oven Electric,Warranty Provided |
| ENERGY | AC - Central Elect,Heat Cntrl Electric,Water Heater - Elect |
| INTERIOR | Floor WW Carpet New,Kitchen Island,Pantry,Window Treatmnt None |
| EXTERIOR | Patio Covered |
| ROOM DIMENSIONS | Bedroom : 13.4 x 14.9 Bedroom : 12.4 x 12.4 Bedroom : 13.8 x 10.1 Great Room : 24 x 14.9 Kitchen : 14.2 x 11.8 |
Schools
Location & Map
Traveling North on Highway 331 from Santa Rosa Beach, turn left onto Highway 20. Follow to Business Hwy 331 and turn right. Continue on Bus 331 to Village Commons Blvd and turn right. Follow to Edgewood Drive and turn left. Continue to Sweet Blossom Bend and turn left. Stay on Sweet Blossom Bend to Eunola Lane and turn left.































