Santa Rosa Beach, FL 32459
Property Inquiry
Contact Allison Freeman about this property!
Property Details
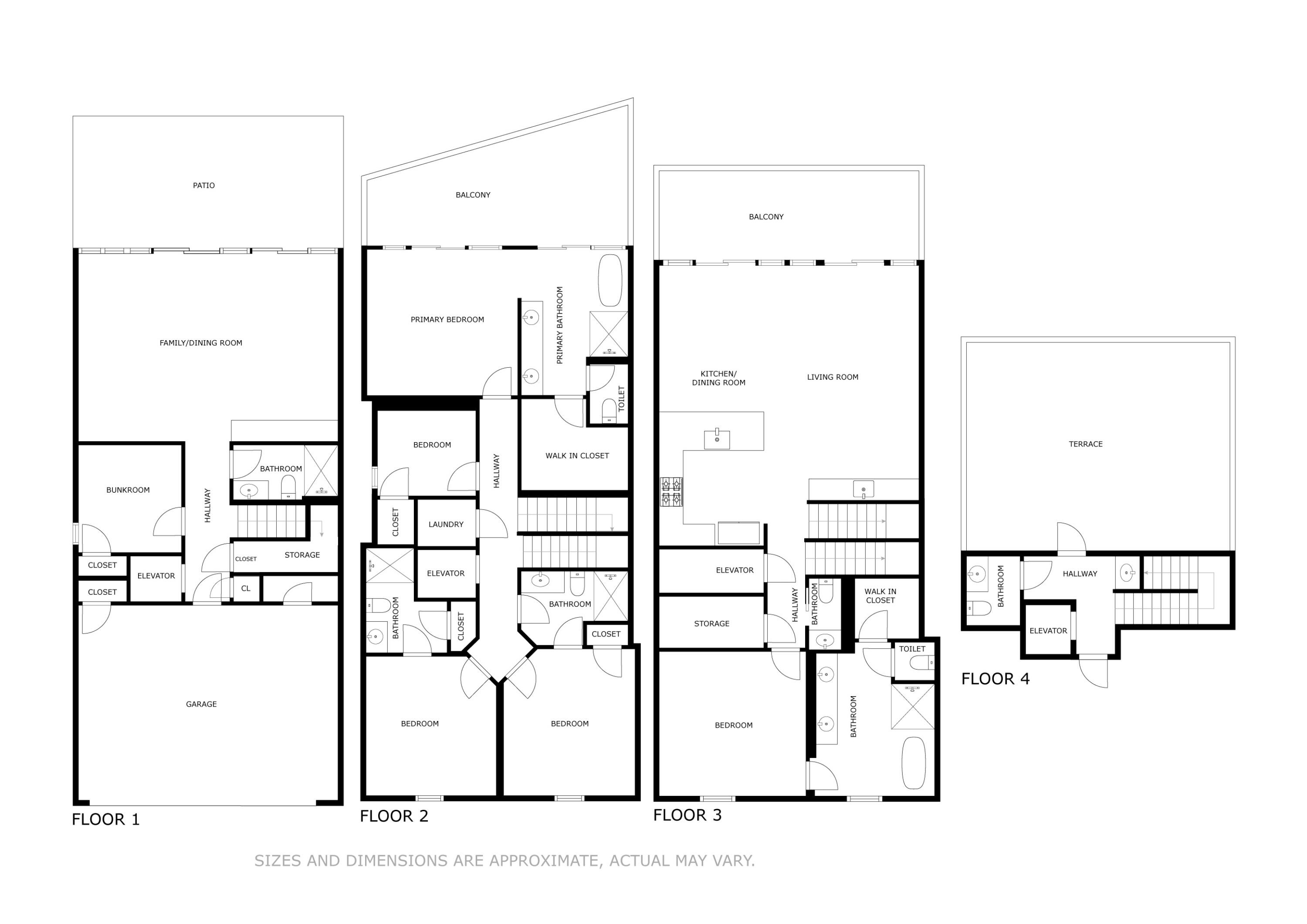
Welcome to 2182 W County Highway 30A, an exceptional coastal modern residence in the gated community of The Crest at Blue Mountain Beach. This luxurious Gulf-view home sits directly on 30A, offering effortless access to the best dining, shopping, and experiences along the Emerald Coast. Floor-to-ceiling windows flood the interior with natural light and frame breathtaking coastal scenery. With six bedrooms including two master suites each designed with a soaking tub, separate shower and walk-in closet and two additional en-suites, the home blends elegance and comfort for family and guests alike.The main living area showcases an refined open-concept design with a wet bar including an ice maker and wine fridge ideal for entertaining, while a second living room with its own ice maker provides a relaxed space to unwind. The private rooftop deck is simply stunning, featuring a grill, wet bar, and half bathperfect for hosting sunset dinners or enjoying panoramic views of the Gulf.
A private elevator serves all levels of the home, while the fenced backyard with a fire pit offers a serene outdoor retreat. Within the community residents enjoy access to a resort-style pool, spa, and private cabana. Additional highlights include a two-car attached carport, a detached golf cart garage and an included six-seater golf cart.
Just steps from the beach and walking distance to local favorites like Cowgirl Kitchen, Red Fish Taco, Blue Mountain Bakery, and Blue Mountain Creamery, this home captures the essence of 30A living. With Gulf Place only 2.2 miles away and Grayton Beach just 2.5 miles down the road, 2182 W County Highway 30A offers the perfect combination of modern luxury, Gulf views, and direct access to everything 30A has to offer.
| COUNTY | Walton |
| SUBDIVISION | Crest Development |
| PARCEL ID | 12-3S-20-34056-000-0020 |
| TYPE | Detached Single Family |
| STYLE | Contemporary |
| ACREAGE | 0 |
| LOT ACCESS | County Road,Paved Road |
| LOT SIZE | 35x93 |
| HOA INCLUDE | Accounting,Ground Keeping,Internet Service,Management,Master Association,Recreational Faclty,Trash,TV Cable |
| HOA FEE | 3450.00 (Quarterly) |
| UTILITIES | Electric,Gas - Natural,Public Sewer,Public Water,TV Cable,Underground |
| PROJECT FACILITIES | Dumpster,Gated Community,Handicap Provisions,Pets Allowed,Pool,Separate Storage,Short Term Rental - Allowed,TV Cable |
| ZONING | Resid Single Family |
| PARKING FEATURES | Carport,Carport Attached,Garage Detached,Guest |
| APPLIANCES | Dishwasher,Disposal,Dryer,Fire Alarm/Sprinkler,Ice Machine,Microwave,Oven Self Cleaning,Range Hood,Refrigerator,Refrigerator W/IceMk,Smoke Detector,Stove/Oven Gas,Washer,Wine Refrigerator |
| ENERGY | AC - 2 or More,AC - Central Elect,Ceiling Fans,Heat - Two or More,Heat Cntrl Electric,Water Heater - Tnkls |
| INTERIOR | Breakfast Bar,Elevator,Floor Hardwood,Floor Tile,Furnished - All,Lighting Recessed,Owner's Closet,Pantry,Washer/Dryer Hookup,Wet Bar,Window Treatment All |
| EXTERIOR | BBQ Pit/Grill,Deck Covered,Deck Open,Fenced Back Yard,Patio Open,Shower,Summer Kitchen |
| ROOM DIMENSIONS | Family Room : 17 x 25 Bedroom : 10 x 10 Bedroom : 13 x 12 Bedroom : 13 x 12 Master Bathroom : 15 x 10 Master Bathroom : 14 x 14 Living Room : 25 x 20 Kitchen : 12 x 10 |
Schools
Location & Map
Traveling west on 30A, pass Highway 83, and then turn right into the community just before Cowgirl Kitchen.


































































