Miramar Beach, FL 32550
Property Inquiry
Contact Stephanie Phillips about this property!
Property Details
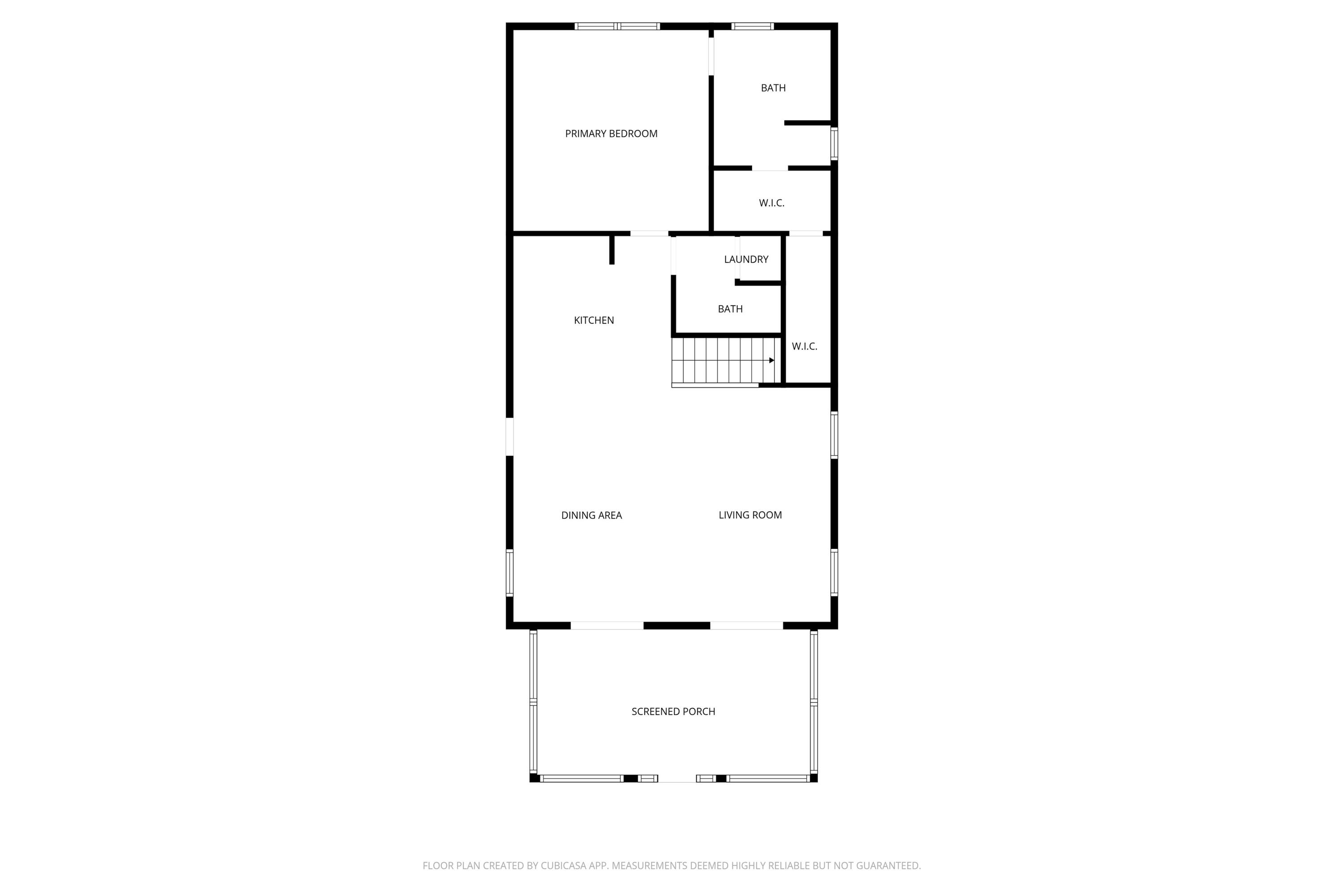
Fabulous Price & location! Fully furnished charming Beach Cottage offers a relaxed beach lifestyle with a large screened in front porch, and a short stroll to the Pool Pavillion. Spacious Primary Bedroom with ensuite Bathroom on the first level, & 2 large guest suites on the second level each with an ensuite bathroom. UDATES include ROOF REPLACED (2024) HVAC (2018) WATER HEATER (2018) Kitchen cabinetry painted and all appliances replaced (2019) Beautiful LVP was installed upstairs, NO CARPET! Whether you're looking for a primary residence, a vacation retreat, or a strong rental property, this home provides the best of Sandestin Golf & Beach Resort. Don't miss your chance to own a piece of paradise in one of Florida's most desirable coastal communities.
| COUNTY | Walton |
| SUBDIVISION | BUNGALOS AT SANDESTIN |
| PARCEL ID | 24-2S-21-42830-000-2458 |
| TYPE | Detached Single Family |
| STYLE | Florida Cottage |
| ACREAGE | 0 |
| LOT ACCESS | Controlled Access,Paved Road,Private Road |
| LOT SIZE | 34.00 X 144.00 |
| HOA INCLUDE | Ground Keeping,Management,Master Association,Recreational Faclty,Security,Trash,TV Cable |
| HOA FEE | 529.00 (Monthly) |
| UTILITIES | Public Sewer,Public Water,TV Cable |
| PROJECT FACILITIES | BBQ Pit/Grill,Beach,Dock,Dumpster,Exercise Room,Fishing,Game Room,Gated Community,Golf,Marina,Pavillion/Gazebo,Pets Allowed,Pickle Ball,Picnic Area,Playground,Pool,Short Term Rental - Allowed,Tennis,TV Cable,Waterfront |
| ZONING | Resid Single Family |
| PARKING FEATURES | N/A |
| APPLIANCES | Dishwasher,Disposal,Dryer,Microwave,Refrigerator W/IceMk,Smoke Detector,Stove/Oven Electric,Washer |
| ENERGY | AC - Central Elect,Double Pane Windows,Heat Cntrl Electric,Water Heater - Elect |
| INTERIOR | Breakfast Bar,Floor Tile,Floor Vinyl,Furnished - All,Newly Painted,Owner's Closet,Renovated,Washer/Dryer Hookup,Window Treatment All |
| EXTERIOR | Porch Screened,Sprinkler System |
| ROOM DIMENSIONS | Living Room : 22 x 16 Kitchen : 11.75 x 11 Master Bedroom : 13.83 x 13.41 Bedroom : 14.41 x 11.25 Bedroom : 14.5 x 12.6 |
Schools
Location & Map
Enter the east gate into Sandestin, turn right for approximately 1/2 mile to the entrance of the Bungalos on the right, Turn in and home will be on the right past the pool pavillion.































