Santa Rosa Beach, FL 32459
Property Inquiry
Contact Pamela Hawkins about this property!
Property Details
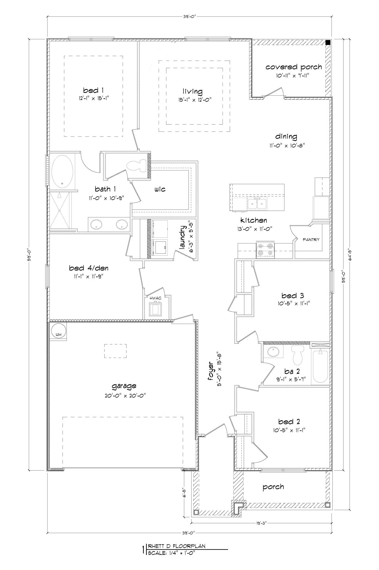
Welcome to 169 Holley Grove Lane, a new home at Holley Grove at Peach Creek in Santa Rosa Beach, Florida. This home is under construction and has a warm entry hall that leads into a generously sized living area, where natural light creates an inviting atmosphere. The heart of the home, an expansive kitchen, has a practical center island with quartz countertops, perfect for meal prep and space for bar seating. It has white upper and lower cabinetry throughout and a large corner pantry where storage will never be a concern. Entertaining is a breeze with the kitchen's seamless flow into the living and dining areas with EVP flooring throughout. The kitchen has a stainless-steel appliance including a smooth top stove, microwave and dishwasher. The primary bedroom is tucked away for privacy and features EVP flooring, and a spacious ensuite bath complete with a dual sink vanity, separate shower, and indulgent soak tub and a large closet. The home's three additional bedrooms, each with substantial closets, share a full bathroom equipped with a shower-tub combo. A large laundry room off the entry hall adds to the home's practicality. Additionally, the two-car garage provides ample space for vehicles and storage. Outside, the covered entry and back patio offer the perfect backdrop for relaxation or dining under the Florida sky. With its thoughtful design and attractive features, The Rhett floor plan is the ideal home for making lasting memories.
| COUNTY | Walton |
| SUBDIVISION | Holley Grove at Peach Creek |
| PARCEL ID | 36-2S-19-24140-000-0260 |
| TYPE | Detached Single Family |
| STYLE | Traditional |
| ACREAGE | 0 |
| LOT ACCESS | Paved Road |
| LOT SIZE | 55x110 |
| HOA INCLUDE | Accounting,Master Association |
| HOA FEE | 316.25 (Quarterly) |
| UTILITIES | Public Sewer,Public Water |
| PROJECT FACILITIES | N/A |
| ZONING | Resid Single Family |
| PARKING FEATURES | Garage Attached |
| APPLIANCES | Auto Garage Door Opn,Dishwasher,Microwave,Smoke Detector,Smooth Stovetop Rnge,Stove/Oven Electric |
| ENERGY | AC - Central Elect,Ceiling Fans,Heat Cntrl Electric,Water Heater - Elect |
| INTERIOR | Kitchen Island,Pantry,Washer/Dryer Hookup |
| EXTERIOR | Patio Covered |
| ROOM DIMENSIONS | Bedroom : 12.1 x 15.1 Bedroom : 10.5 x 11.1 Bedroom : 10.5 x 11.1 Bedroom : 11.1 x 11.9 Living Room : 15.1 x 12 Dining Area : 11 x 10.8 Kitchen : 13 x 11 |
Schools
Location & Map
Traveling West on Highway 98 from Inlet Beach, turn right onto Old Ferry Road. Continue for approximately 3/4 mile and Holley Grove at Peach Creek will be on the right




































