Crestview, FL 32536
Property Inquiry
Contact Brooklne Hadley about this property!
Property Details
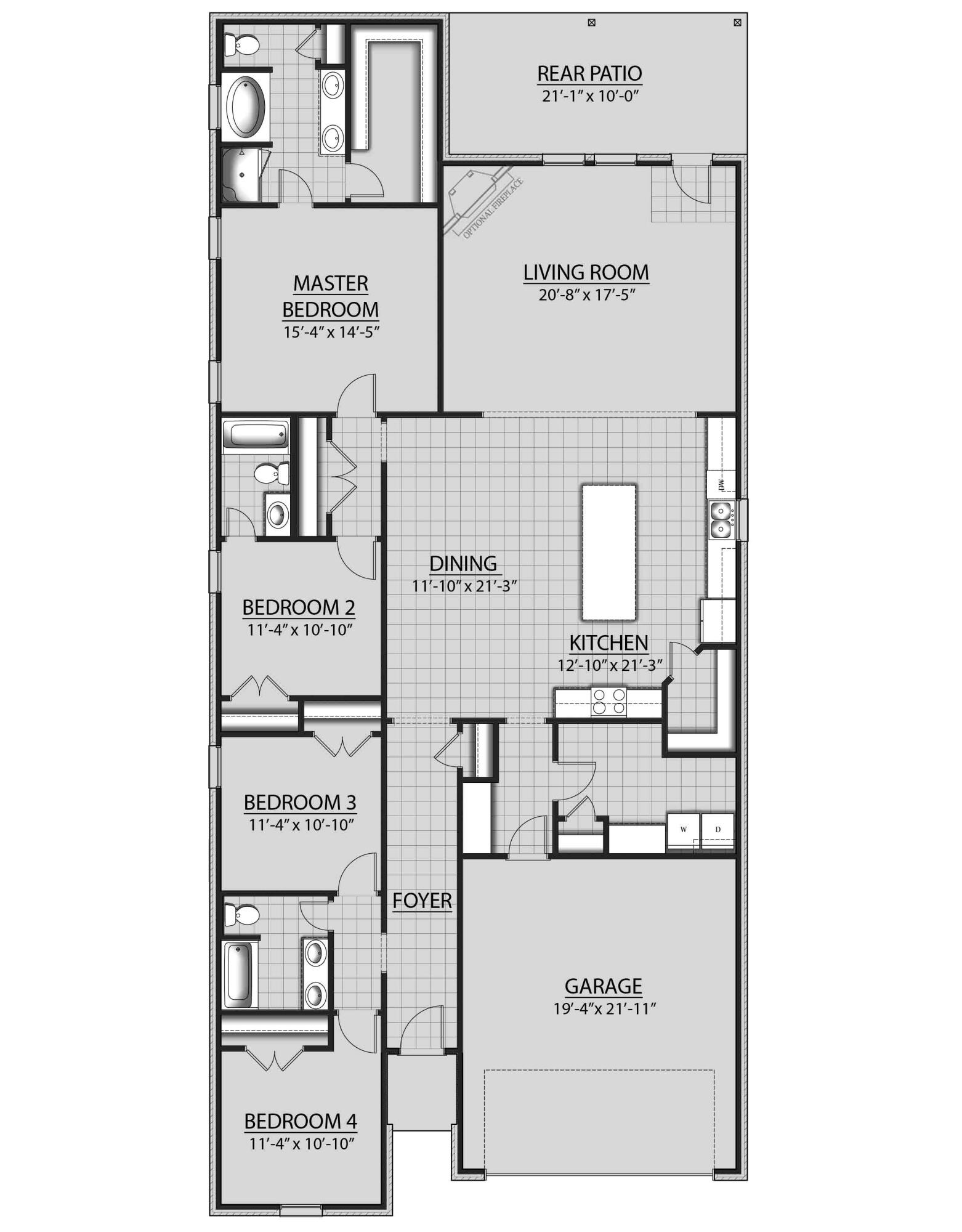
Awesome builder rate! Restrictions apply.The CEDAR IV G in Young Oaks community offers a 4 bedroom, 3 full bathroom, open design. Upgrades added (list attached). Features: double vanity, garden tub, separate shower, and walk-in closet in master bath, double vanity in 2nd bath, en suite bath in bed 2, kitchen island, walk-in pantry, boot bench in mudroom, covered porches, LED lighting throughout, crown molding, recessed lighting, ceiling fans in living and master, custom frame mirrors in all baths, landscaping, architectural 30-year shingles, flood lights, and more!Energy Efficient Features: water heater, electric kitchen appliance package, vinyl low E MI windows, and more! Energy Star Partner.
| COUNTY | Okaloosa |
| SUBDIVISION | YOUNG OAKS |
| PARCEL ID | 32-4n-23-1700-0000-0240 |
| TYPE | Detached Single Family |
| STYLE | Traditional |
| ACREAGE | 0 |
| LOT ACCESS | Paved Road |
| LOT SIZE | 70x156 |
| HOA INCLUDE | Management |
| HOA FEE | N/A |
| UTILITIES | Electric,Public Water,Septic Tank,Underground |
| PROJECT FACILITIES | N/A |
| ZONING | Resid Single Family |
| PARKING FEATURES | Garage Attached |
| APPLIANCES | Auto Garage Door Opn,Dishwasher,Disposal,Microwave,Smoke Detector,Stove/Oven Electric,Warranty Provided |
| ENERGY | AC - Central Elect,Ceiling Fans,Double Pane Windows,Heat Cntrl Electric,See Remarks,Water Heater - Elect |
| INTERIOR | Breakfast Bar,Ceiling Crwn Molding,Floor Vinyl,Kitchen Island,Lighting Recessed,Pantry,Pull Down Stairs,Shelving,Washer/Dryer Hookup,Window Treatmnt Some |
| EXTERIOR | Patio Covered |
| ROOM DIMENSIONS | Living Room : 20 x 17 Kitchen : 12 x 21 Dining Room : 11 x 21 Master Bedroom : 15 x 14 Bedroom : 11 x 10 Bedroom : 11 x 10 Bedroom : 11 x 10 Garage : 19 x 21 |
Schools
Location & Map
From I-10 W: Right on N Ferdon Blvd (SR-85) for 2.3 mi. Left on Old Bethel Rd (CR-188) for 0.6 mi. Right on Roberts Rd for 0.5 mi. Left on Louis Circle and you will see Young Oaks.


