Inlet Beach, FL 32461
Property Inquiry
Contact The Agency Sales Team about this property!
Property Details
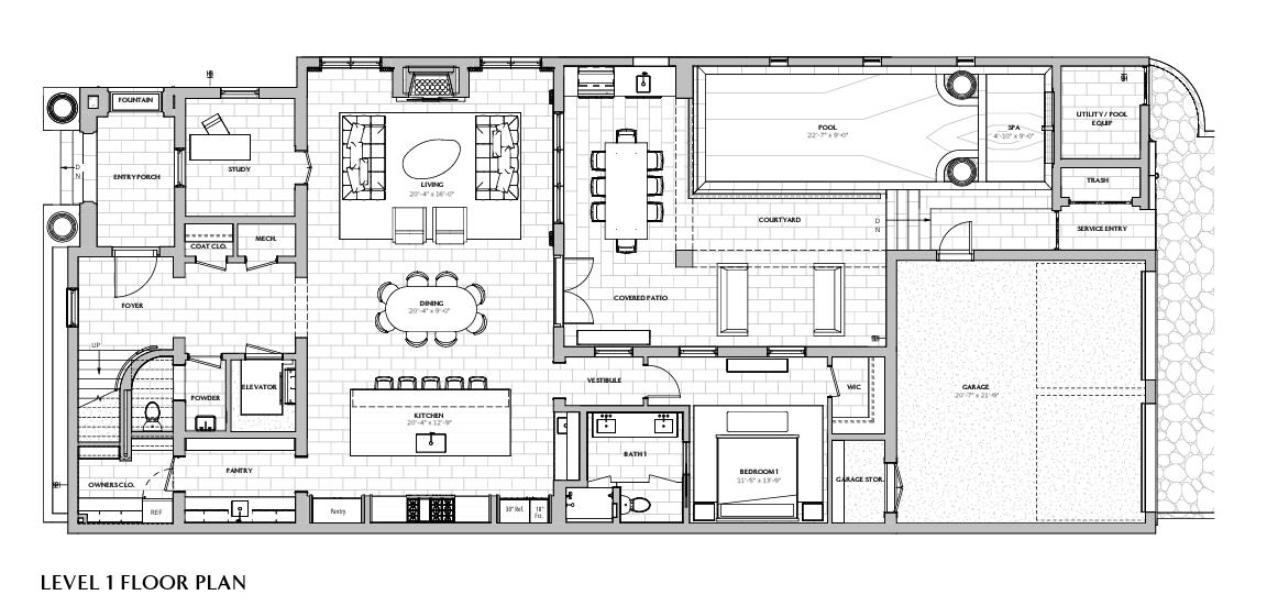
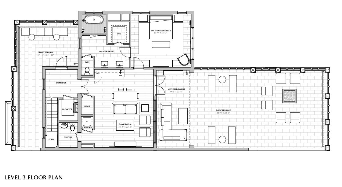
Bold in design, under construction, and soon to be one of the most distinguished homes in Alys Beach--71 Elbow Beach Rd is the definition of elevated coastal living.Now under construction and slated for completion in May 2026, 71Elbow Beach Road represents a rare and architecturally significant offering in the heart of Alys Beach. This premier corner lot at Elbow Beach Way and Lizard Leaps Alley will soon be home to a remarkable 5,619-square-foot custom residence designed by acclaimed architect Walt Chancey of Chancey Design Group. A visionary collaboration between Chancey Design Group and Alys Beach Design Review Board has resulted in a highly sought-after variance to the traditional design code--permitting, for the first time, a 21/2-story residence with dual third-level rooftop terraces. This design not only breaks new ground but also celebrates the iconic Alys Beach rooftop architecture while offering sweeping views of the Gulf of Mexico and the surrounding community.
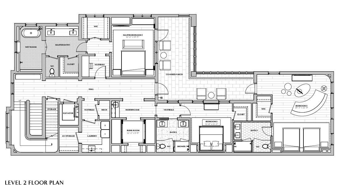
Crafted for full-time living or effortless entertaining, the home features five bedrooms plus a double bunk room, five full bathrooms with dual vanities, and two powder roomsstrategically located on both the main living level and the third-floor entertainment level. All bedrooms offer spacious walk-in closets, including two luxurious primary suites.
The main level is centered around open-concept living, with a professional-grade kitchen seamlessly connected to expansive dining and living spaces. Large glass doors open to a private courtyard featuring a pool, spa, calming fountains, and a covered loggia with a summer kitchencreating the ultimate indoor-outdoor lifestyle experience.
Additional highlights include a private study, dedicated home office, elevator access to all levels, and a third-floor entertainment room that opens to both north- and south-facing rooftop terracesperfect for capturing sunrise views over Alys Beach and unforgettable sunsets over the Gulf.
Interior finishes have been carefully curated by Chancey Design Group's award-winning interiors team, ensuring a cohesive and luxurious design throughout. With construction underway and selections in place, this is a unique opportunity to secure a custom home in Alys Beach without the wait of design and permitting.
Located just 350 yards from the exclusive Alys Beach Beach Club & Restaurant and within close proximity to the Town Center, the home offers both luxury and convenience within one of the most desirable beachside communities along 30A.
| COUNTY | Walton |
| SUBDIVISION | ALYS BEACH |
| PARCEL ID | 26-3S-18-16406-0UU-0090 |
| TYPE | Detached Single Family |
| STYLE | Other |
| ACREAGE | 0 |
| LOT ACCESS | Paved Road |
| LOT SIZE | 44.53' x 100' |
| HOA INCLUDE | Management,Master Association |
| HOA FEE | 3097.50 (Quarterly) |
| UTILITIES | Electric,Gas - Natural,Public Sewer,Public Water,TV Cable |
| PROJECT FACILITIES | Beach,Deed Access,Exercise Room,Pets Allowed,Playground,Pool,Short Term Rental - Allowed,Tennis,Waterfront,Whirlpool |
| ZONING | Resid Single Family |
| PARKING FEATURES | Garage Attached |
| APPLIANCES | Auto Garage Door Opn,Cooktop,Dishwasher,Disposal,Dryer,Freezer,Ice Machine,Microwave,Oven Double,Range Hood,Refrigerator W/IceMk,Security System,Smoke Detector,Stove/Oven Gas,Warranty Provided,Washer,Wine Refrigerator |
| ENERGY | AC - 2 or More,AC - Central Elect,Ceiling Fans,Heat Cntrl Gas,Water Heater - Gas,Water Heater - Tnkls |
| INTERIOR | Breakfast Bar,Ceiling Beamed,Ceiling Vaulted,Elevator,Fireplace,Floor Tile,Furnished - None,Kitchen Island,Lighting Recessed,Newly Painted,Pantry,Washer/Dryer Hookup,Wet Bar |
| EXTERIOR | Patio Covered,Patio Open,Pool - Heated,Pool - In-Ground |
| ROOM DIMENSIONS | Kitchen : 20.3 x 12.75 Living Room : 20.3 x 16 Bedroom : 11.5 x 13.75 Garage : 20.58 x 21.75 Master Bedroom : 12.17 x 14.5 Bunk Room : 12.17 x 6.75 Bedroom : 11.67 x 11.25 Bedroom : 16.25 x 21.75 Master Bedroom : 17 x 15 Bonus Room : 16.67 x 22.17 Terrace : 38 x 22 |
Schools
Location & Map
Alys Beach is located between Watersound and Rosemary Beach along east 30A. From HWY 98, head south on S. Watersound Pkwy. Left on E. County HWY 30A. Go about .7 miles and turn right onto Elbow Beach Rd.















































