Crestview, FL 32539
Property Inquiry
Contact Judy Couto about this property!
Property Details
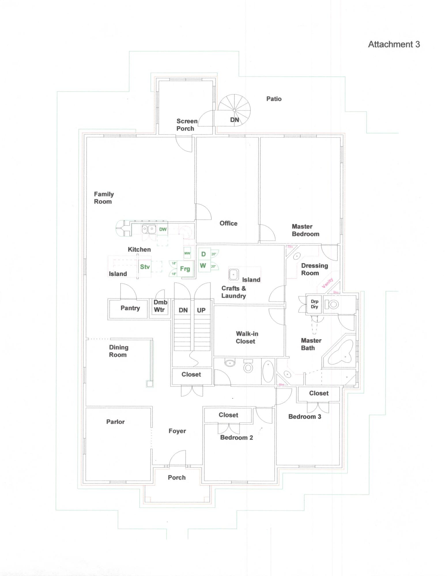
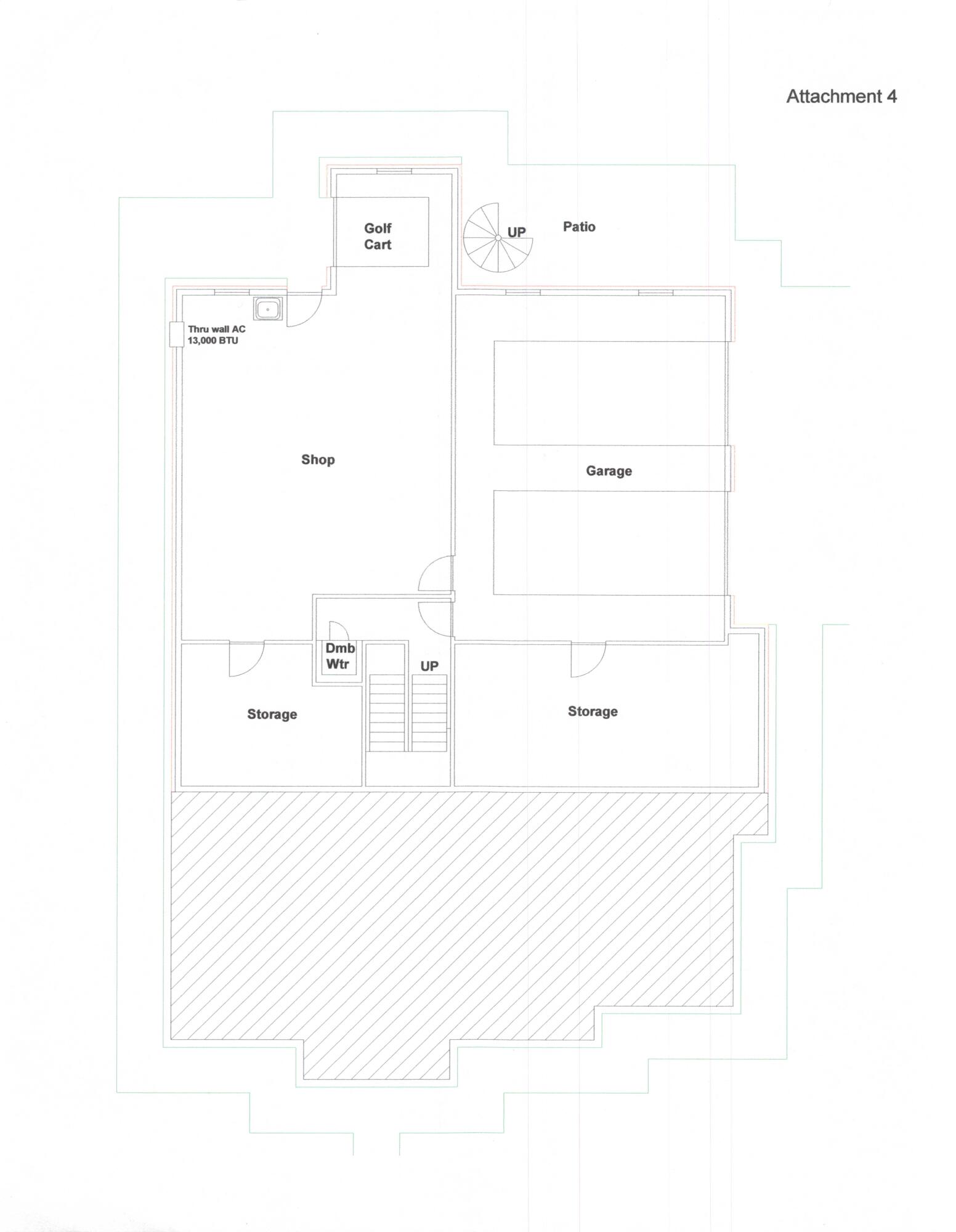
Experience Lakeside Luxury with this extraordinary Custom Built 4,508 sq. ft. One-Owner Lakefront Home in South Crestview, offering a serene retreat on 1.26 acres with 120 feet of frontage on a fully stocked 27-acre lake. Built in 2011 and meticulously maintained by its original owners, this unique property boasts exceptional features throughout.Key Highlights: Impressive Workshop: A 736 sq. ft. heated/cooled workshop with utility sink and rollup door, perfect for hobbies or storing a golf cart. An oversized 2-car garage and two spacious storage rooms complete the first level. Quality Construction: 2x6 framing, 9' ceilings throughout, 36' wide doors (except closets), and more than 450 sq. ft. of spray foam insulated attic space ensures energy efficiency. Modern Conveniences: Central vacuum system, Home Team in-the-wall pest control with termite bond, and two brand new HVAC systems (2022) for optimal comfort. Functional Main Level: Includes a spacious family room, well-appointed kitchen with wood cabinets, granite countertops, a dumbwaiter lift to the garage, large pantry, and breakfast bar. Adjacent sunroom leads to a screened porch, perfect for soaking in the lake views. A large laundry room with an island and an office add to the convenience. Master Suite: Features a beautiful tray ceiling, expansive walk-in closet, and a thoughtfully designed en-suite bathroom with multiple vanities, Tiled Walk-In shower, and unique "drip-dry" closet with a drain for hand washables. Additional Living Space: There is a large Office next to the Master - Perfect for those who work from home. On the 2nd Level, there are also two guest bedrooms, a full bath, and a versatile parlor/bonus room. Carpeting is only found in the guest rooms, maintaining easy upkeep throughout. Extras: TVs are included, and a lawn tractor with a lift for maintenance is part of the sale. The property also features a storage shed and a scenic backyard leading to the water's edge. This is truly a one-of-a-kind property where you can enjoy peaceful lakefront living with modern amenities. Schedule your visit to fully appreciate the beauty and craftsmanship of this exceptional, One-Owner Home!
| COUNTY | Okaloosa |
| SUBDIVISION | MEADOW LAKE ESTATES |
| PARCEL ID | 32-3N-23-0000-0044-0350 |
| TYPE | Detached Single Family |
| STYLE | Contemporary |
| ACREAGE | 1 |
| LOT ACCESS | N/A |
| LOT SIZE | 136x461x120x406 |
| HOA INCLUDE | N/A |
| HOA FEE | 100.00 (Annually) |
| UTILITIES | Gas - Natural,Public Water,Septic Tank,TV Cable |
| PROJECT FACILITIES | N/A |
| ZONING | Resid Single Family |
| PARKING FEATURES | Garage,Garage Attached,Guest,Oversized,See Remarks |
| APPLIANCES | Auto Garage Door Opn,Dishwasher,Microwave,Oven Self Cleaning,Refrigerator W/IceMk,Smoke Detector,Smooth Stovetop Rnge,Stove/Oven Electric,Stove/Oven Gas |
| ENERGY | AC - High Efficiency,Double Pane Windows,Heat Pump Air To Air,Insulated Doors,Storm Windows,Water Heater - Elect |
| INTERIOR | Breakfast Bar,Fireplace,Floor Hardwood,Floor Tile,Floor Vinyl,Lighting Recessed,Pantry,Plantation Shutters,Split Bedroom,Washer/Dryer Hookup,Woodwork Painted |
| EXTERIOR | Fenced Chain Link,Fenced Lot-All,Fenced Privacy,Porch,Porch Screened,Workshop,Yard Building |
| ROOM DIMENSIONS | Foyer : 11.4 x 9.7 Family Room : 13.11 x 12.3 Full Bathroom : 11.6 x 5.1 Bedroom : 11 x 9 Bedroom : 14.7 x 12 Dining Room : 12.1 x 12.7 Kitchen : 16.2 x 15.11 Living Room : 17.8 x 20.8 Sun Room : 10.4 x 8.5 Laundry : 11.4 x 14.1 Master Bedroom : 20.4 x 15.2 Master Bathroom : 28 x 10.2 Workshop : 23.9 x 32.11 Full Bathroom : 11.11 x 7.6 Bonus Room : 15.8 x 8.7 Screened Porch : 10.8 x 15.5 Garage : 30.1 x 23.6 Bonus Room : 26.7 x 12.5 Bonus Room : 21.4 x 48.4 Office : 20.4 x 10.2 |
Schools
Location & Map
Hwy 85 - Turn Right on Live Oak - Turn Left on Browning - Left on Keats and Left on Meadow Lake - 4801 will be on your Right - Look for sign.

























































































