Baker, FL 32531
Property Inquiry
Contact Olesya Chatraw about this property!
Property Details
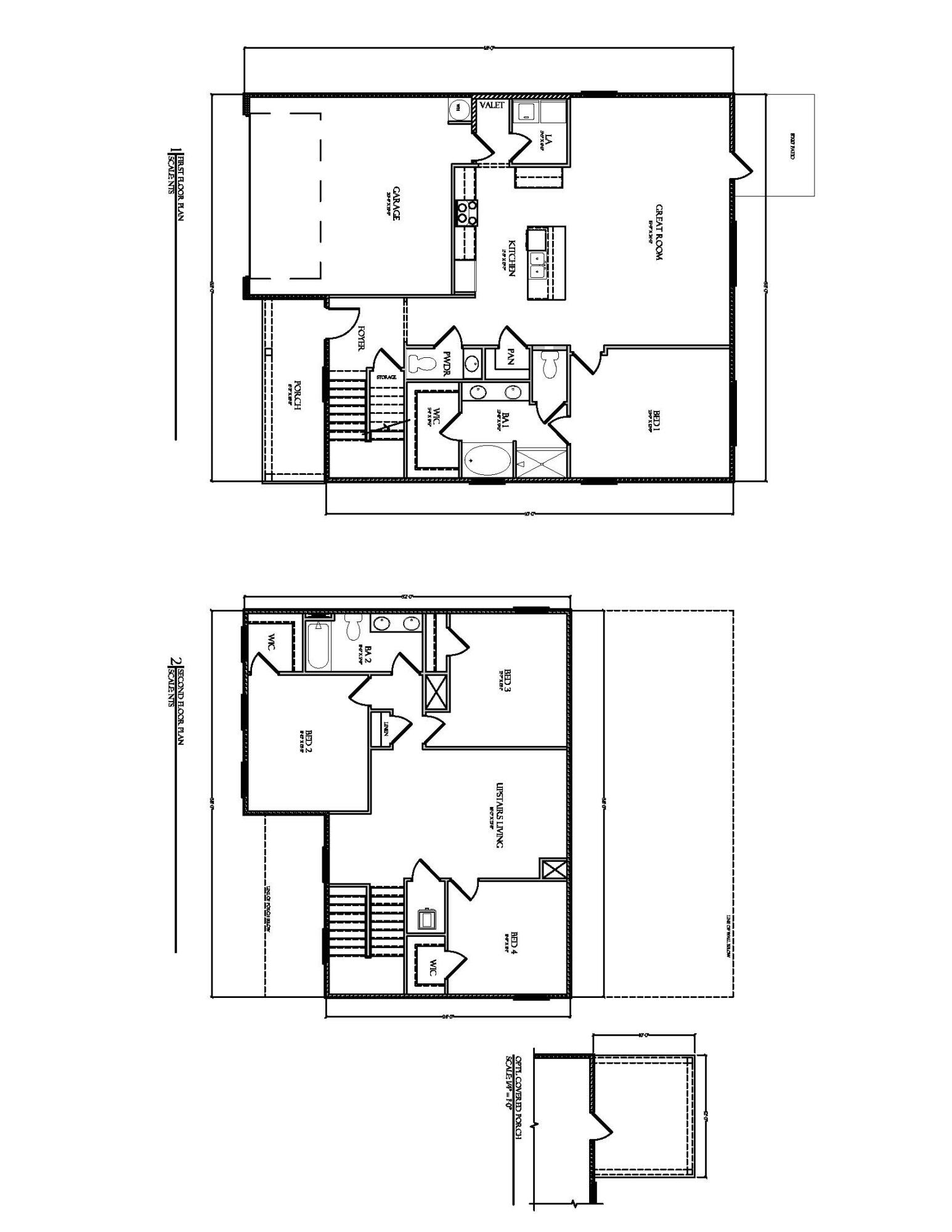
Charlie Day Estates is just minutes from shopping, dining, schools, & a short trip on SR-85 from the pristine beaches of Destin, Navarre, & Pensacola. NEW ''Belfort'' floorplan, a well-designed 2 story model with 2 bedrooms ''&'' a living room on ''EACH'' level. Highly desirable open concept. The kitchen, living room & dining area flow together for relaxed living. Open kitchen features: all stainless-steel appliances, pantry, Quartz kitchen countertops, nice island, smooth-top range, built in microwave & quiet dishwasher. Bedroom 1 on the first floor offers a spacious walk-in closet, & adjoining bath has a double vanity, large shower, linen and water closet. The 'Smart Home Connect' System offers a variety of Smart Hm. Devices for your convenience.
| COUNTY | Okaloosa |
| SUBDIVISION | Charlie Day Estates |
| PARCEL ID | 07-3N-24-1000-0000-0240 |
| TYPE | Detached Single Family |
| STYLE | Contemporary |
| ACREAGE | 0 |
| LOT ACCESS | Paved Road |
| LOT SIZE | Please see agent for Plat. |
| HOA INCLUDE | N/A |
| HOA FEE | 475.00 (Annually) |
| UTILITIES | Public Water,Septic Tank |
| PROJECT FACILITIES | N/A |
| ZONING | Resid Single Family |
| PARKING FEATURES | Garage Attached |
| APPLIANCES | Auto Garage Door Opn,Dishwasher,Disposal,Microwave,Smoke Detector,Smooth Stovetop Rnge,Stove/Oven Electric,Warranty Provided |
| ENERGY | AC - Central Elect,Double Pane Windows,Heat Cntrl Electric,Water Heater - Gas,Water Heater - Tnkls |
| INTERIOR | Floor Vinyl,Floor WW Carpet New,Kitchen Island,Lighting Recessed,Pantry,Washer/Dryer Hookup |
| EXTERIOR | Patio Open |
| ROOM DIMENSIONS | Living Room : 15.9 x 24.5 Kitchen : 11.5 x 17.7 Laundry : 5.5 x 6.5 Bedroom : 15.5 x 12.9 Loft : 16 x 12.8 Garage : 20 x 25 |
Schools
Location & Map
Take US-90 E and Galiver Cutoff to Charlie Day Rd/Elzie Rd in Baker. In 7.7 mi turn left onto Florida Nat'l Scenic Trl/Log Lake Rd. in 1 mi turn right onto US-90 E. in 2.7 mi Turn left onto Galiver Cutoff. In 3.4 mi Turn right onto Charlie Day Rd/Elzie Rd and the community will be on your left!





























